A Showcase of Space and Style!

Stunningly situated within the sought-after “Honeywood Estate”, this quality-built 4 bedroom 2 bathroom Ross North corner home is packed full of wonderful features and has all of the bells and whistles when it comes to modern family living.

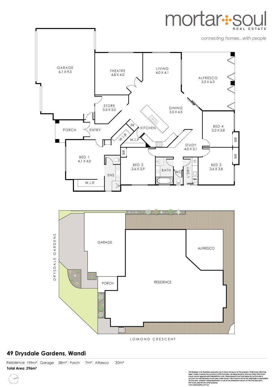
The main hub of the house is an open-plan family, dining and kitchen area where sparkling stone bench tops, double sinks, a huge walk-in pantry and ample storage and cupboard space meet excellent stainless-steel range-hood, gas-cooktop, oven and dishwasher appliances.

The minor sleeping quarters with a separate bath and shower in the family bathroom ensure that everyone’s personal needs are effortlessly appeased, with the functional laundry playing host to loads of built-in storage, tiled splashbacks and external/side access for drying.

Separate from the living area, a carpeted study/activity area with a built-in computer desk, doubling as a fantastic two-person workstation with storage. It really is the perfect place for the kids to do their homework, without any interruptions at all.

A huge carpeted master suite is the obvious pick of the bedrooms with its ceiling fan, fitted “his and hers” walk-in wardrobe and contemporary ensuite, comprising of a shower and twin “his and hers” vanities. Doubling your living options here is a massive carpeted theatre room behind the privacy of double doors – ceiling fan and all.

Outdoors, a fabulous alfresco-entertaining area off the family room has a ceiling fan and can be fully enclosed by white plantation shutters and a pull-down café blind, protecting everybody from the elements, no matter what the time of year. It also spills out to the side deck for some extra space for those larger gatherings and special occasions, if required.

You will absolutely love living just footsteps away from lush local parklands, with Honeywood Primary School, The Local Farmers Market, bus stops, the freeway, Aubin Grove Train Station, shopping at Harvest Lakes and so much more all within a very, very close proximity. Impressive is an understatement, here!

Other features include, but are not limited to:

  • ·         Double-door entrance
  • ·         Timber-look floors
  • ·         Large semi Butlers Kitchen or internal storeroom with built-in storage space
  • ·         Breakfast bar
  • ·         2nd/3rd/4th bedrooms with ceiling fans and built-in robes
  • ·         Large Home Theatre or 5th bedroom
  • ·         Ducted air-conditioning
  • ·         Security roller shutters to all windows
  • ·         Down lights
  • ·         Skirting boards
  • ·         Rainwater tank
  • ·         Security doors
  • ·         Gas hot-water system
  • ·         Battery light backup should power fail
  • ·         Sprawling front-yard lawns
  • ·         Low-maintenance gardens
  • ·         Reticulation
  • ·         Triple lock-up garage, with roller-door access to the side decking
  • ·         Side-access gate
  • ·         504sqm (approx.) corner block
  • ·         Council Rates $2655.63 Yearly (approx.)
  • ·         Water Rates $1,282.08 Yearly (approx.)
4 2 3 504 m2
Address 49 Drysdale Gdns, Wandi
Price SOLD
Property Type Residential
Property ID 198
Category House
Land Area 504 m2
Floor Area 296 m2

Agent Details

Hadley Shearn photo

Hadley Shearn

0488 012 000
View Profile