As Easy as You Like!

 

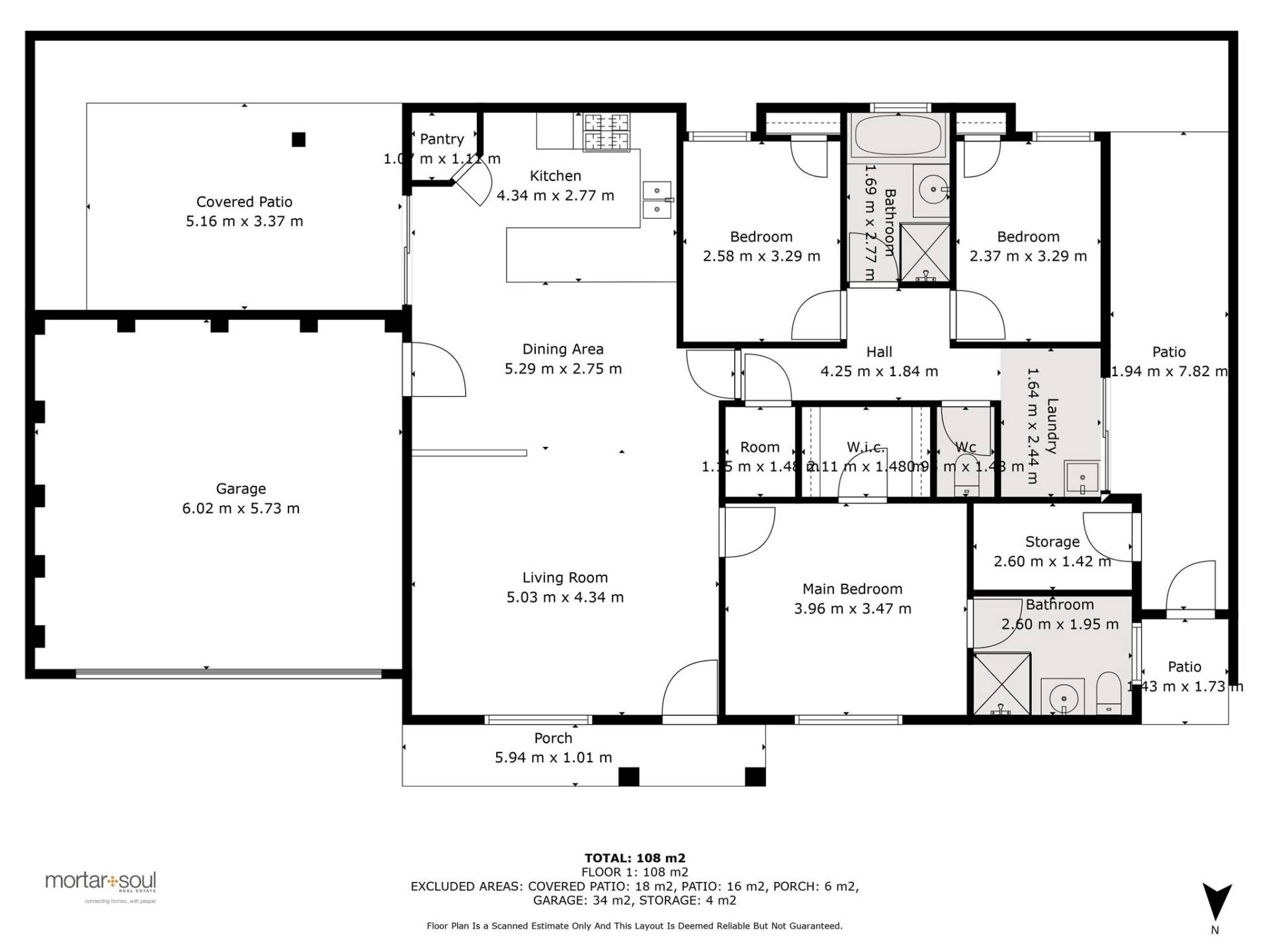
Perfectly positioned in between the river and beautiful Geographe Bay, this stylish 3 bedroom 2 bathroom single-level villa combines quality low-maintenance modern living with a sought-after location – only a few minutes away from the heart of the Busselton city centre.

A welcoming front living room leads through to the open-plan dining and kitchen area, where a sense of flow and practicality is complemented by a breakfast bar, a corner storage pantry, double sinks, a microwave nook and excellent stainless-steel range-hood, gas-hotplate and under-bench-oven appliances. 

The obvious pick of the bedrooms is the larger carpeted front master suite, where a walk-in wardrobe meets a private light-filled ensuite bathroom – shower, vanity, toilet and all. Outdoors and next to the kitchen sits a delightful alfresco-entertaining area that is ideal for all seasons and occasions.  

This desirable “lock-up-and-leave” gem is close to it all, with bus stops, lush green riverside parklands, birdlife, medical facilities, West Busselton Primary School, Busselton Senior High School, shopping, community sporting facilities, golf courses and, of course, the beach all nestled either walking distance or a short drive from your front doorstep. Don’t forget about some of the State’s best wineries, breweries and restaurants within the magical southwest area. Convenience has never been more impressive!

Other features include, but are not limited to:  

·         Tiled living, dining, kitchen and wet areas

·         Recessed ceiling to the front living room

·         2nd/3rd bedrooms with built-in robes

·         Separate bath and shower in the main family bathroom

·         Separate laundry

·         Separate 2nd toilet

·         Walk-in linen press

·         Split-system air-conditioning

·         Easy-care gardens

·         External storeroom

·         Double lock-up garage – with internal shopper’s entry

·         Built in 2016 (approx.)

 

3 2 2
Available Leased
Address Unit 5, 14 Alpha Rd, West Busselton
Price Under Application
Property Type Rental
Property ID 250
Category House
Floor Area 108 m2

Agent Details

Joanne Crisp photo

Joanne Crisp

0418 595 795
View Profile